固話:13829701296
手機:13829701296
QQ:523229659
地址:廣州市番禺區石基鎮凌邊工業區9號
鋁單板,是當今鋁質建材產品中的一個深度加工系列產品。鋁單板擁有重量輕、剛性好、強度高、耐候性喝耐腐蝕性好等優點;加工工藝復雜,可塑性強,可加工成平面、弧形面和球面等各種復雜的形狀;色彩可選取性廣泛,裝飾效果好;耐污染性好,便于清潔、保養;施工安裝方便、快捷并且可回收再生處理,有利環保。鋁單板適用于裝飾大廈外墻、梁柱、陽臺、隔板包飾、室內裝飾等,深受廣大用戶的青睞。

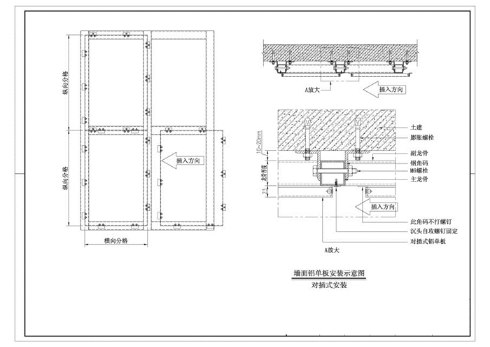
臻禹品牌鋁單板采用優質高強度鋁合金板材,鋁單板的厚度規格常為1.5、2.0、2.5、3.0、3.5、4.0MM,鋁單板的結構主要由面板、加強筋、掛耳等部件組成。有要求時板背面可填隔熱礦巖棉、掛耳可直接由面板折彎而成,亦可在面板上另外加裝。在面板背面焊有螺栓,通過螺栓把加強筋和面板聯系起來,形成一個牢固的整體,加強筋起到增加單層幕墻鋁板剛性的作用,保證單層幕墻鋁板在長期使用中的抗風壓和平整性。


鋁單板適用于各種建筑內外墻、大堂門面、柱飾、高架走廊、人行天橋、電梯包邊、陽臺包裝、廣
告指示牌、室內異形吊頂等的裝飾。建筑物外墻、梁柱、陽臺、雨棚機場、車站、醫院會議廳、歌劇院,體育場館接待大堂等等高層建筑物。 臻禹品牌室內鋁單板和室外鋁單板之間的差異:許多人在挑選鋁單板的時候廠家都會問客戶要買室內鋁單板仍是室外鋁單板,盡管都是鋁單板但它們之間仍是有差異的。

室外鋁單板所在環境比較惡劣,對于鋁單板的質量問題非常的嚴厲。而室內鋁單板所在環境相對而言比較溫和,所以質量只要到達標準就行。總體上,室外鋁單板的厚度要比室內鋁單板厚,質量也會好上許多。同時它們在色彩上的要求也是不同的,鋁單板由于裝飾環境的不同在視覺上發生的效果也是不同的,這點尤為注意。現在我們應該知道室內鋁單板和室外鋁單板的差異了板。在專業方面的常識,鋁單板都會在顧客有需求時解答的,所以請我們都定心吧。

廣州市臻禹金屬建材有限公司生產廠家創建于2001年,本企業坐座落于亞洲經濟活躍的我國珠江三角洲中心——廣州。本企業現有職工200多人,資金雄厚;是一家集研制、生產、銷售、裝置和售后服務于一體的企業。公司已通過ISO9001:2000質量管理體系認證,并榮獲《我國建筑行業知名品牌》、《優質產品》等榮譽,是我國工程建設協會在國內建筑裝修范疇特別推薦使用的“綠色環保產品”。 多年來,公司一直致力于開拓、立異產品,以其精深的技藝,高的品質和誠篤的服務乞立于我國天花飾業的前列。作為金屬天花的龍頭企業和知名品牌,憑著多年的執著追求,在國內外上百個重大經典裝修工程及新五金加工工業中獲得碩大的成功,臻禹建材現有臻禹,納美品牌等都是注冊商標,近年來發揚世界工藝精華,飛速發展,生產的“臻禹”牌天花,多達數十個系列和上百個種類。其間國家專利技術運用,與超絕的天花裝修工藝結合,涉及金屬天花裝修的所有范疇,盡顯輝煌。



